Skip to main content

Diseño BIM

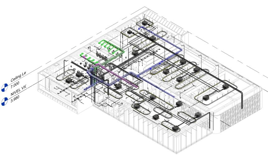
ASSO HVAC SERVICES: innovación y precisión en cada modelo.

El uso de tecnología BIM (Building Information Modeling) en el diseño de sistemas HVAC ha transformado la manera en que se planifican y ejecutan los proyectos de climatización. Este enfoque digital permite modelar en 3D todos los componentes del sistema, integrándolos con las demás especialidades del edificio para lograr máxima precisión, coordinación y eficiencia constructiva.

A través del diseño BIM, es posible detectar interferencias, optimizar rutas de ductos y tuberías, y calcular cargas térmicas con mayor exactitud, reduciendo errores en obra, desperdicio de materiales y tiempos de instalación. Además, facilita la planificación del mantenimiento futuro y la gestión del ciclo de vida de los equipos.

En ASSO HVAC SERVICES, aplicamos ingeniería HVAC basada en BIM para el desarrollo de proyectos comerciales, industriales y hospitalarios, asegurando soluciones sostenibles, eficientes y perfectamente integradas con la arquitectura y las demás disciplinas del edificio.

    Solicita tu cotización